описание
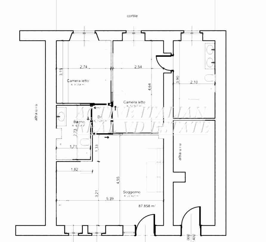
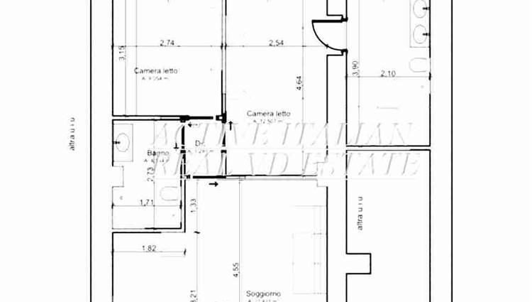
В Комо, в 2 шагах от швейцарской границы Комо Брогеда, мы предлагаем на продажу полностью отремонтированную квартиру, готовую к проживанию, в многоквартирном доме. Квартира представляет собой трехкомнатную квартиру с отдельным входом с первого этажа прямо в жилую зону, большую гостиную с открытой кухней, коридор и две спальни с выходом в небольшой частный сад, 2 ванные комнаты. Перед домом имеется частная парковка. Класс энергопотребления объявляется.
Аренда идеально подходит для иностранных работников, работающих в Швейцарии, или в качестве инвестиции для получения дохода.
Район удобный, граница Швейцарии и Италии находится в 100 метрах.