Villa con giardino grande e piscina interna a Tremezzina, Lenno, Lago di Como

In vendita
Villa
Tremezzina
1.080.000 €
Descrizione
Proponiamo villa indipendente a pochi passi dal centro di Lenno e dai principali servizi commerciali.
La villa si sviluppa su un unico livello: Ampio ingresso, luminoso soggiorno con angolo bar e cucina a vista, quattro camere matrimoniali e due bagni.
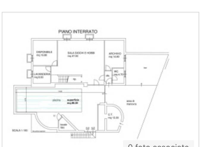
Al piano seminterrato invece si trova una grande taverna con cucina, un’ulteriore camera da letto, un bagno e una stupenda piscina interna.
Completano la proprietà, un'autorimessa, posti auto esterni e un bellissimo giardino di ca 1000 mq.
Valore aggiunto anche il bellissimo porticato coperto, attrezzato di barbecue in sasso.
Lenno è una località di forte flusso turistico da tutto il mondo, offre molti servizi e grazie anche all’attracco della navigazione è anche molto comoda da raggiungere via lago.
In questa località si trova anche la meravigliosa villa del Balbianello, sulla punta del promontorio chiamato Lavedo, famosa in tutto il mondo e meta di molti turisti durante la stagione estiva.
Comune di Tremezzina ha incentivato l’arrivo di turisti anche durante l’inverno, promuovendo la valorizzazione del territorio grazie a diverse e uniche attività.
Le informazioni riportate sono puramente indicative e non sono in alcun modo attribuibili a obbligazioni contrattuali. Tutti i dati sono soggetti a verifica prima di ogni forma di compromesso. Immagini della piscina sono realizzati in progetto rendering.
Caratteristiche principali
Codice:
VLe1.05
Città:
Tremezzina
Categoria:
Villa
Locali:
5
Camere:
3
Bagni:
3
Mq:
300
Mq Giardino:
1000
Terrazzi:
1
Anno:
1980
Classe energetica:
E
175
Stato Immobile:
Buono
Grado:
Signorile
Riscaldamento:
Autonomo
Accessori
Aria Condizionata
Mappa
Via Alessandro Volta - Tremezzina (CO)
Cookie preference