New villas in Tremezzina, Como Lake

for sale
Villa
Tremezzina
1,500,000 €
Description
In Ossuccio, a town of pre-Roman origins which overlooks the so-called Zoca de l'Oli, a gulf of Lake Como so named due to the remarkable tranquility of its waters, precisely "smooth as oil". It is a fascinating village rich in historical, artistic and archaeological evidence of the Lario. From this magnificent village in Tremezzina, among the wonders of its countryside, you can enjoy a unique view of the Comacina island.
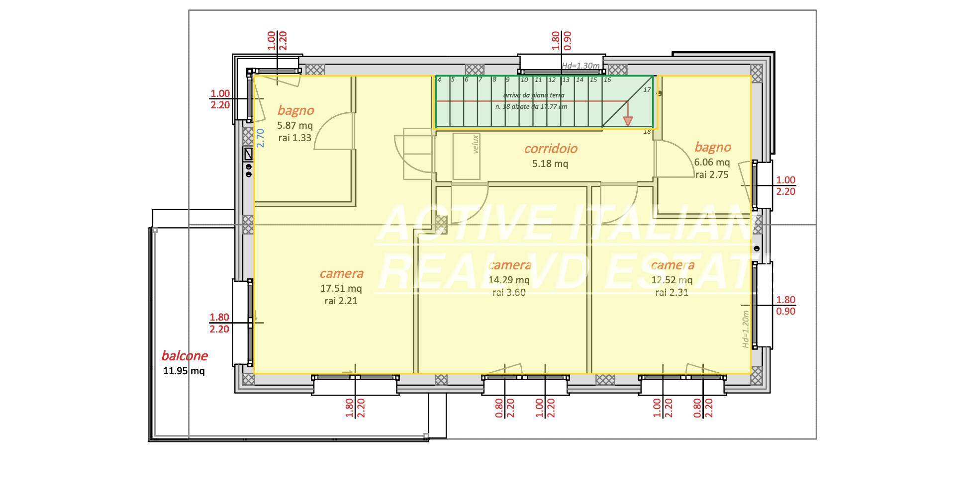
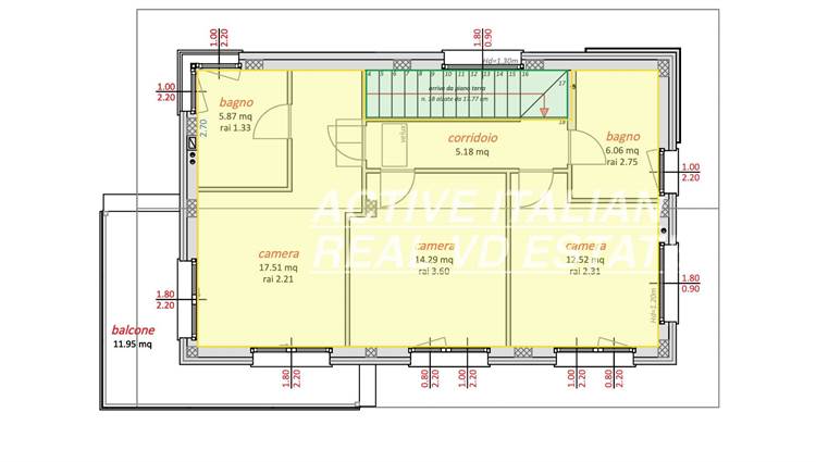
The Comacina Island, picturesque and unique on Lake Como, is appreciated not only for its lush nature and splendid views, but also for the precious archaeological and artistic heritage it preserves: it is in fact considered among the most interesting archaeological areas of northern Italy for the early Middle Ages. About 600 meters long and just 200 meters wide, Comacina Island includes a total area of 6 hectares, mostly covered by lush typically Mediterranean vegetation. Access to the island is via the lake with boarding in Ossuccio (Taxi-boat) or via the Navigazione Lago di Como which allows disembarkation directly on the island.The new complex of 3 highly energy efficient villas, compliant with the most recent seismic regulations, leaves the buyer the possibility of customization. The three villas stand one in front of the other on a slightly steep terrain which guarantees all of them an enchanting view of the lake and the Comacina Island. Each is spread over three floors and has a garden with swimming pool, parking spaces and private garages. Double entrance, from the garage and from the ground floor, comfortable stairs, living room with kitchen and bathroom with exit to the private garden with swimming pool, 2 private uncovered parking spaces in addition to the garage - ground floor, first floor hosts sleeping area with 1 maser bed room with en-suite bathroom and exit to the terrace and 2 double bedrooms with a bathroom. The fine finishes, the large spaces and the optimal exposure make them a unique solution in the real estate panorama of the area. Perfect as a first home in a quiet and well-served area, very close to schools and other amenities, as well as a perfect investment for short or seasonal rentals for tourists on Lake Como.
Primal Features
Code:
VOS1.5
City:
Tremezzina
Category:
Villa
Locals:
4
Bedrooms:
3
Bathrooms:
3
Sqm:
191
Sqm garden:
500
Year:
2026
Energetic class:
Unreported
Property Conditions:
New
Furniture:
Not Furnished
Heating:
Independent
Accessories
Air Conditioning
Map
Via Andrea Castelli - Tremezzina (CO)
Cookie preference