Independent house in Menaggio Como Lake for investment

for sale
Palazzo / Palazzin
Menaggio
700,000 €
Description
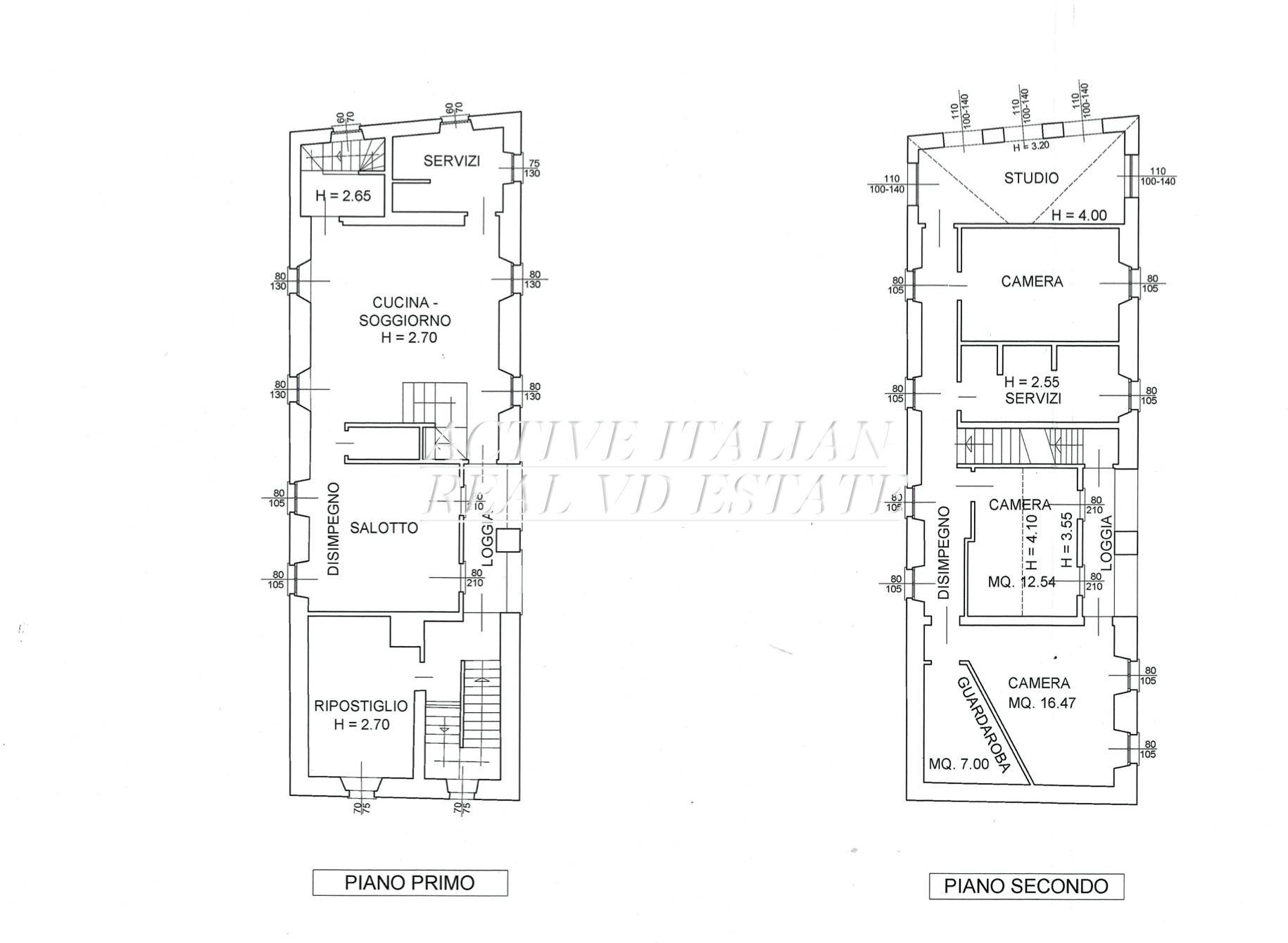
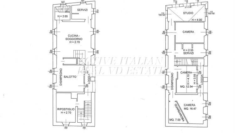
MENAGGIO: We offer for sale an independent building in a strategic panoramic position close to center of Menaggio. which perfectly serves all the areas of the municipality, Last years it used to have a well-established cold table bar, tobacconist and newsagent with a room seating approximately 30 people in addition to the bar on the ground floor. Now all the ground floor of 200 sqmt is an empty space, easy to divide in 2 apartments or rooms for rent investment. In the basement there is a large cellar with warehouse. On the first floor there is a large bright apartment with high ceilings, ample dining room, 3 bedrooms and a bathroom. The entire property is in a good state of conservation. The convenience of the place, many external municipal parking lots. It is an investment that will certainly pay off in one of the most beautiful and visited locations on Lake Como. The house can be easily turned to be a rental property with 2 or 3 independent apartments to rent to tourists. Energy Class G 503,90 kWh/mq anno
Primal Features
Code:
VCI800
City:
Menaggio
Category:
Palazzo / Palazzin
Locals:
6
Bedrooms:
4
Bathrooms:
3
Sqm:
313
Year:
1970
Energetic class:
G
503.9
Property Conditions:
Good
Heating:
Independent
Accessories
Air Conditioning
Map
Largo Fossato, 8 - Menaggio (CO)
Cookie preference